San Marcos, CA
Home MenuPost-Construction Structural BMPs
Para traducir esta página, vaya al ícono del globo terráqueo en el tema de esta página para Google Translate.
Quick Link: Maintenance Verification Form
Stormwater post-construction best management practices
Also known as the city’s Structural Best Management Practices (BMPs) program element, post-construction stormwater management requires reducing pollution by incorporating various systems into the overall project. All existing and future development and redevelopment projects must comply with this program element.
While effective stormwater and water quality management begins during the design phase of new construction and redevelopment projects, post-construction best management practices typically allow stormwater to infiltrate into the ground and/or treat the stormwater to remove various pollutants prior to discharge.
Some of the more common pollutants that these systems manage include: sediments, chemicals, oils and grease, metals, and nutrients, as well as erosion and flooding. In order to ensure regulatory compliance we recommend that the following pertinent regulatory documents be reviewed prior to plan submission.
Post-construction Structural BMP maintenance
Regular maintenance of structural BMPs is essential to ensure they are in working condition. Every year, the city sends property owners forms in order to verify their structural BMPs are maintained and operating properly. Please complete a maintenance verification form if you have received notice to do so.
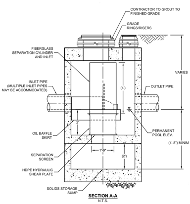
Structural BMP examples
Below are the more common types of structural BMPs, as well as typical maintenance procedures.
For more information on the required maintenance for the structural BMP installed on your property, refer to your property’s recorded Maintenance Agreement and/or Water Quality Technical Report, the documentation provided from the manufacturer, Project Clean Water maintenance fact sheets, or the County of San Diego’s fact sheets. You can also access Project Clean Water and County of San Diego’s fact sheets.
Resources
- Projects in the planning and/or development phase (Coming Soon)
- For existing facility projects (Coming Soon)
- FAQs - Best Management Practices
| WATERSHED DIVISION | REPORT WATERSHED VIOLATIONS |
|---|---|
| 1 Civic Center Drive San Marcos, CA 92069 (760) 744-1050 |
(760) 481-3878 Report a Concern |
